
Aventura Small - compact wonen, groots leven
Geen chalet. Geen containerwoning. Maar een échte volwaardige biobased woning - op eigen grond.
De Aventura Small is ons meest compacte model – slechts 18,5 m² – maar gebouwd als een volwaardige woning. Geen tijdelijke oplossing, maar een écht robuust huis. Voor wie écht slim wil starten – zonder concessies.
✔️ Volwaardige woning op 18,5 m² – slim ontworpen met slaap-, zit- en sanitaire ruimte
✔️ Biobased en dampopen gebouwd – geen schimmel, geen condens, wél comfort
✔️ Tot 75% energiezuiniger dan traditioneel – lagere lasten vanaf dag één
✔️ Binnen 1 dag geplaatst, verplaatsbaar – geen bouwput, geen stress
✔️ Voldoet aan het Bouwbesluit – dus geen vakantiehuisje, maar een échte woning
Ideaal voor ouders die hun kind een eerlijke woonstart willen geven – zonder de waarde van hun erf te ondermijnen.
Geen half werk. Geen concessies. Alleen een oplossing die klopt – nu en straks.
Beperkte productiecapaciteit – reserveer snel hier jouw plek op de wachtlijst!
3D-Impressie
De 3D-impressies geven een zo'n goed mogelijke indruk van dit tiny house. De daadwerkelijke uitvoering kan visueel anders uitvallen. Tenzij anders aangegeven wordt interieur niet meegeleverd.
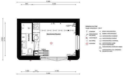
5,3m x 3,5m x 3,80m (lxbxh)
Oppervlakte: 18,55m2
Gewicht: +/- 6.000kg
Warmtevraag:
789 kWh/ jaar
Prijs: op aanvraag
Levertijd: 16 weken
Gevelaanzichten
Plattegronden en doorsnedes

Beperkt beschikbaar. Wél alvast inschrijven?
Onze productiecapaciteit is bewust gelimiteerd. Zo kunnen we kwaliteit garanderen - van ontwerp tot oplevering.
Wil je een Aventura Small (of ander prefab model) op je erf plaatsen? Dan is inschrijven op de wachtlijst de slimste eerste stap.
Waarom aanmelden?
✔️ Je krijgt voorrang zodra nieuwe productieplekken beschikbaar komen
✔️ Je blijft als eerste op de hoogte van updates en levertijden
✔️ We nemen persoonlijk contact met je op – in volgorde van inschrijving
Wil jij een Aventura Small bemachtigen?
Schrijf je nu in en claim jouw plek op de wachtlijst!


















